Industrial sectional garage doors
Industrial sectional doors are ideal solutions for closing industrial areas in specific construction situations.Custom sizing and use of special components allow various technical applications under load.
Torna residential sectional garage doors are characterized by:
- Modern manufacturing technology for seamless integration of the door in the building
- Standard sliding systems
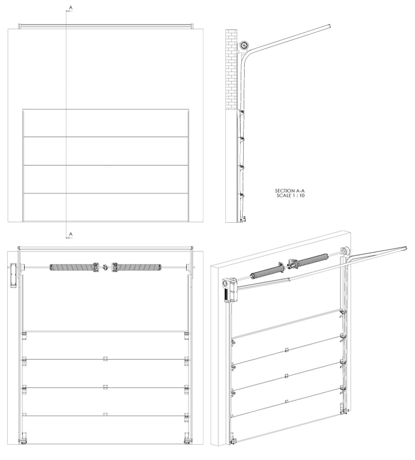
- LHF sliding systems (Low Headroom Front) Torsion springs mounted on the beam
- LHR sliding systems (Low Headroom Rear) for mounting springs behind tracks
- FTR sliding systems (Follow The Roof) where it wants the sliding track to follow the roof
- HL Sliding systems (High Lift) where the sliding track wants to be lifted from the door gap.
- HL-FTR sliding systems (High Lift and Follow The Roof) where you want slide track to go vertical , then be tilted by the roof form.
- FVL sliding systems (Full Vertical) track rises vertically, tangentially to the wall
- Optimum thermal insulation achieved by
- sandwich panels with a thickness of 40 mm
- side seals
- double seal at the bottom of the door
- Comfort, safety and security
- Electric drive from a distance through a remote whose code can not be cloned
- Spring break safety system
- Safety system against trapping fingers between the panels
- Security system against attempted break-ins
- Safety system of "safety edge"
- Photoelectric cells safety system
- Possibility of opening an emergency in case of power failure
- Guarantee operation to 15 000 / 25 000 cycles
- Colors and accessory diversity
- There are available over 40 types of panels with different standard colors and drawing
- The possibility of garage door glazing
- Possible integration of pass doors with thin threshold
Operating review
Sliding systems
Panel colors
There are available over 20 colors and wood imitation













